Cat B Installs

Are you considering an office fit out to revamp your workspace and enhance productivity? Undertaking a Cat B office fit out involves several stages, each crucial for creating a functional and inspiring work environment. In this guide, we’ll walk you through the process and stages of a Cat B office fit out, from initial planning to final handover.

What is a Cat B Office Fit Out?

A ‘Cat B’ office fit out focuses on the customisation and interior design of office spaces to meet the specific needs and preferences of occupants. Unlike Cat A fit outs, which involve basic building infrastructure and services, Cat B fit outs are tailored to create functional and aesthetically pleasing work environments. This includes partitioning, flooring, lighting, furniture selection, IT infrastructure, and branding elements.

Office furniture installation

Here are the typical stages of a Cat B Office Fitout:

Stage 1. Outlining the Scope of Works and Creating a Brief

The first stage of a Cat B office fit out involves outlining the scope of works and creating a detailed brief. This includes consulting with key stakeholders, such as department heads and employees, to understand their requirements and preferences. The brief covers aspects such as the desired layout, branding elements, furniture specifications, and any special requirements or considerations. The chosen office fitout specialist may come and get extra information such as measurements, site surveys and analysis of storage requirements. 

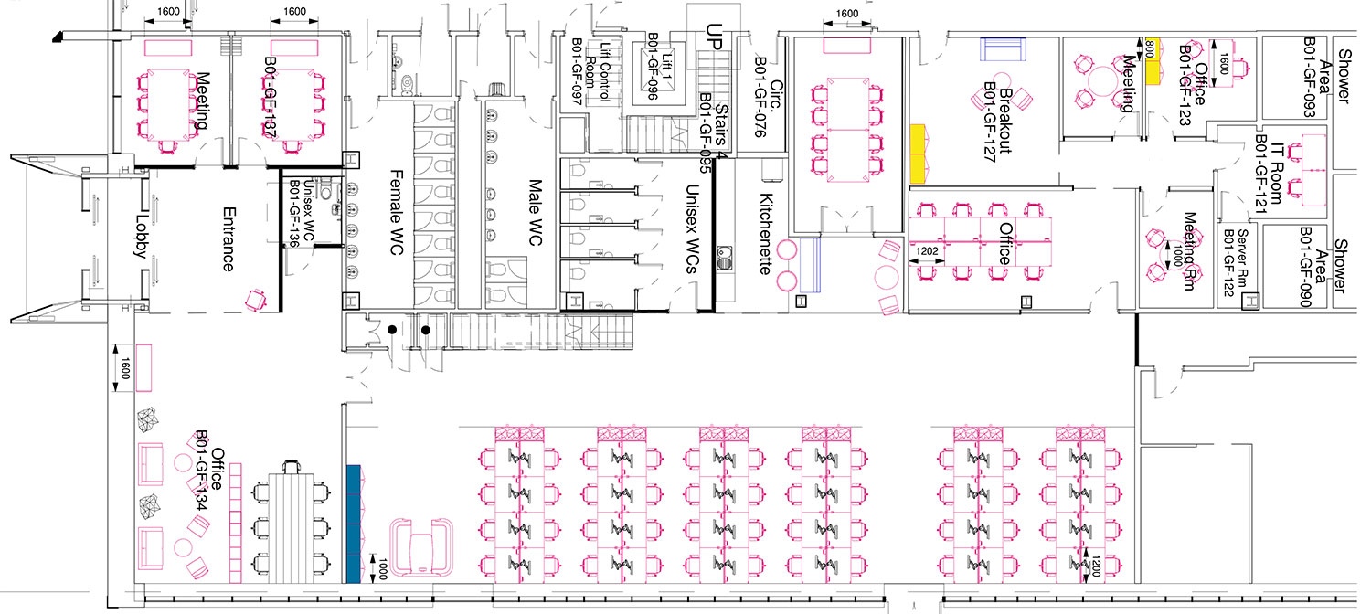
Stage 2.  Space Planning

Once the brief is established, the next stage is space planning. Space planners use CAD or Revit software to create detailed floor plans, optimising the layout of the office space to maximise functionality, efficiency, and aesthetics. This includes determining workstation configurations, circulation routes, meeting areas, hot spots, and other spatial requirements. Visits to office furniture showrooms maybe useful at this stage to get an idea of the desired furniture.

Space Planners that plan in Revit software, like Flexiform, can create Building Information Models (BIM) which can be shared with building contractors, and architects and are useful for Facilities Managers to pull information about the office and its contents. 

Office designer - Flexiform

Stage 3. Interior Design

With the space plan finalised (or close to being), the focus shifts to interior design and specification of furniture and finishes. Office interior designers work closely with clients to develop a cohesive design concept that reflects their brand identity and corporate culture. This includes selecting colour schemes, finishes, materials, lighting, and furniture styles to create a cohesive and visually appealing workspace. 

Office furniture manufacturer - Flexiform

Stage 4. Office Furniture Manufacture

The office furniture manufacturing process begins. This involves sourcing or manufacturing furniture and fixtures to meet the specifications outlined in the brief. Furniture is selected based on factors such as durability, ergonomics, aesthetics, and budget. Customisation options may include materials, colours, sizes, and branding elements. 

Stage 5. Health and Safety Assessments

Before any construction or installation work begins, health and safety assessments are conducted to identify and mitigate potential risks. This includes assessing the structural integrity of the building, ensuring compliance with building codes and regulations, and implementing safety measures to protect workers and occupants throughout the fit out process.

Stage 6. Removal of Existing Furniture

If applicable, the existing furniture and fixtures are removed from the office space to make way for the new fit out. This may involve dismantling, disassembling, and disposing of old furniture in an environmentally responsible manner.

office furniture installation - CAT B install by Flexiform

Stage 7. Office Furniture Installs

Once the space is prepared and the new furniture is ready, the installation phase begins. This involves assembling and positioning furniture, installing fixtures such as lighting and signage, and completing any necessary finishing touches to bring the design concept to life. Installation timelines can vary depending on the size and complexity of the project.

Stage 8. Wiring Up IT Systems

During the fit out process, IT wiring and infrastructure are installed to support the organisation’s technology needs. This includes laying cables, setting up network connections, installing communication systems such as phones and internet access points, and ensuring compatibility with existing IT infrastructure.

Stage 9. Snagging

Before final handover, a snagging process is conducted to identify and rectify any defects or issues with the fit out. This includes inspecting the space for any incomplete or substandard workmanship, such as missing fixtures, damaged surfaces, or malfunctioning equipment. Snagging ensures that the fit out meets the client’s expectations and quality standards before occupancy.

Flexiform office fit out for Rugby League offices

Stage 10. Clean Up & Handover

Finally, the completed office fit out is handed over to the client for occupancy. This involves conducting a final walkthrough of the space to ensure that all work has been completed to satisfaction and providing any necessary documentation, such as warranties and maintenance instructions. The handover marks the official completion of the Cat B office fit out project.

In conclusion, a Cat B office fit out involves multiple stages and careful coordination to achieve a successful outcome. By following a structured process and working closely with experienced professionals, you can create a functional and inspiring workspace that meets your organisation’s needs and enhances productivity.


See our Cat B Office Fit Out Case Studies.